精益生產推進八大步驟
推進目標
快速打造精益標桿現場, 訂單交付周期縮短30%以上、生產運營效率提升30%以上、庫存減少50%以上。
推進思路
經過20多年的沉淀和實踐,上海博革咨詢總結出適合國內制造型企業精益管理變革的模型BPS。下面的“精益生產推進8大步驟”是從BPS模型中導出的,適合國內絕大部分機械行業的精益生產推進方法。
博革咨詢認為,精益生產變革不僅僅是生產現場的變革,它是拉動企業整個系統轉型升級的關鍵。

步驟1:VSM價值流深入診斷
推進目標
尋找適合自己的生產組織運營模式。
推進思路
大家首先要考慮什么樣的生產模式是適合自己的“精益生產”模式,這是每一家企業精益變革成功的關鍵。上海博革咨詢將協助您,從價值流運營分析切入,兼顧企業所處的發展階段、市場競爭態勢以及企業人才配置和變革文化,選擇最適合當前企業現狀的生產組織運營模式。
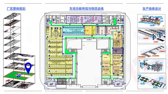
步驟2:節拍式流動化布局優化
推進目標
規劃和設計有效地利用設備、空間、能源和人力資源;簡化生產加工過程并降低管理難度;提高工廠可視化效果,提升工廠整體形象的同時,能夠按客戶需求節拍,強制平衡流動的生產工藝布局。
推進思路
大部分企業在快速成長過程中未考慮長期發展或布局技不全面導致生產工藝布局混亂、影響生產運營效率、產品流轉速度和庫存。上海博革咨詢將根據上百家布局設計的經驗,對現有的自動化、數字化管理進行深入研究后,設計工廠功能布局、車間詳細布局、物流動線設計、工裝夾具設計、物流器具設計以及參觀通道的規劃。


步驟3:計劃管理系統優化
推進目標
制定可執行的計劃,并且在計劃執行過程中看得見異常,也能夠快速響應異常。
推進思路
從銷售訂單的輸入到交付整個流程進行標準化管理是計劃管理的關鍵,在這個過程中上海博革咨詢對基礎數據管理、過程進度管理、庫存管理以及數據分析與改善閉環系統進行深入研究,對組織與流程、流程與信息化相結合,突出企業運營過程中的計劃執行的嚴肅性。
步驟4:倉儲管理系統優化
推進目標
盤點差異率降低、準時供應率提高、庫存周轉率提高。
推進思路
上海博革咨詢對現有的倉庫功能重新分析定位,根據物資分類(大小、重量、容積、形狀、硬度、物品數量、頻率、批量大小、包裝樣式)重新規劃倉庫的分布后,導入ABC分類法、異動盤庫法、先進先出管理法、庫存管理法(安全庫存、最低庫存、最高庫存)、庫齡管理法,對倉庫部門的管理架構、業務流程表單、考核及工作效率模式進行優化。


步驟5:物料配送標準化
推進目標
提高物料準時供應率、減少車間內尋找物料時間和拆包時間的浪費、減少物料搬運過程中的磕碰劃傷等質量損失。
推進思路
上海博革咨詢將協助您從簡單的推動式物流結構轉變為敏捷式物料配送系統。我們將根據不同的物料采購渠道,規劃設計3種車間物料存儲區域(物料暫存區、物料超市區、線邊物料區),并對這3種模式尋找和設計合適的配送方式(雙箱制、水蜘蛛模式、成套配送、直接上線)和包裝器具。
步驟6:工藝技術標準化 推進目標 通過工藝路線和工位器具的優化,打造操作工快速、省力、不出錯的生產出合格產品的標準化工位。 推進思路 上海博革咨詢將根據PQ分析、PR分析、工序分析、LOB分析,尋找合理的生產人力配置,優化生產工藝、設計更適合的工裝、夾具、器具以及生產輔助設施并固化。 | ![]() |
![]() | 步驟7:質量管理標準化 推進目標 從管理、技術、作業多個維度,調查、分析、完善生產工序的作業條件并固化到作業標準和日常管理中,提升制造質量水平。 推進思路 上海博革咨詢采用DFMEA、PFMEA、QC工程圖、作業SOP、檢驗SOP、4M變更管理等工具對每個工序的自工序完結度進行作業要素級別的評估衡量,并持續改善,確保不接受不合格品、不生產不合格品、不流出不合格品的目的。 |